Glenunga Avenue, Glenunga, SA 5064
Overview
Charming Character Bungalow with Modern Comforts in Prestigious Glenunga
3 GLENUNGA AVENUE, GLENUNGA
Location
When timeless charm meets contemporary living, this beautifully renovated c1920 bungalow delivers the best of both worlds. Located on one of Glenunga’s most sought-after streets, this home offers generous space, modern convenience, and the enduring character of a bygone era.
Perfectly positioned within walking distance to Burnside Village, Frewville Foodland, cafés, parks, playgrounds, and scenic walking trails. Zoned for Glenunga International High School and close to a range of highly regarded public and private schools. Easy access to public transport and a short commute to the Adelaide CBD.
Features
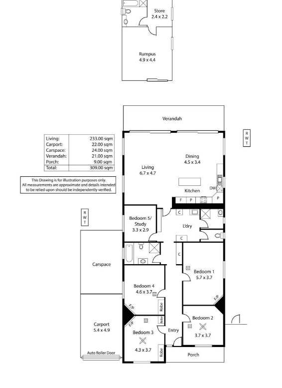
Behind the stunning sandstone façade framed by rose gardens lies an expansive and versatile floorplan, thoughtfully extended to suit modern family living. With four spacious bedrooms, the option of a fifth bedroom or home office, and one granny flat, the home provides flexibility and comfort for families of all sizes.
Classic features such as timber floorboards, stained glass windows, cosy fireplaces, and soaring 3.3m ceilings have been beautifully preserved, while modern upgrades ensure effortless everyday living. Two well-appointed main bathrooms divide the sleeping zones, offering privacy and convenience for multi-generational families or shared living arrangements.
At the heart of the home is the luxuriously updated kitchen, complete with quality gas cooktop, dishwasher, and a large central island-perfect for family meals and entertaining.
Step outside to the north-facing verandah, ideal for BBQs and relaxed afternoons while overlooking the landscaped gardens, veggie patch, and fruit trees. The low-maintenance, irrigated gardens create a peaceful retreat just minutes from the city.
Additional features include:
- Ducted air conditioning
- Secure undercover carport plus additional off-street parking (up to three vehicles)
- Newly installed 6.5kW solar system
- Granny flat with full set of furniture
- Landscaped and irrigated gardens
- Bond – 6 weeks rent equivalent
- Lease Term – 12 months
- Furniture – YES (Subject to inspection)
- Water Charges – Quarterly supply and water usage
WOULD YOU LIKE TO VIEW THIS PROPERTY?
- To apply for this property, you will first need to register via realestate.com.au and attend an open inspection.
- To view or register for upcoming inspections, please view the inspection section at the bottom of the realestate.com.au page
https://www.realestate.com.au/property-house-sa-glenunga-443402324
Disclaimer:
On behalf of Auta Real Estate, all information provided in this advertisement has been obtained from sources we believe to be accurate. However, we cannot guarantee the information is accurate, and we accept no liability for any errors or omissions (including but not limited to a property’s land size, floor plans and size, building age and condition). Interested parties should view the property and seek independent advice to proceed.
RLA 281476
Details
-
Beds:6
-
Baths:3
-
Garages:3
-
Price:$900 per week | Bond $5,400
-
Property Status:









